flexLAB - Cambridge Science Park

flexLAB - Cambridge Science Park

Share this:
Download PDF 9.9MB

Lifestyles are evolving rapidly. The way we inhabit buildings and the way we work must respond to this change to reflect lifestyle choices and advances in technology. For developers looking to the future of their Science Park developments, the question of whether to create office space or dedicated laboratories needs to recognise these changing requirements.

Creating a bespoke laboratory building can carry big risks. The level of servicing can substantially add to the overall height and the result may not meet the specific needs of a potential user, especially as technological change can rapidly render older systems obsolete, and result in a modification to the mix between office and write-up space requirements.

The technological trajectory is moving away from large specialist laboratories towards ‘laboratory on the desk’. Access to big data and computer simulation is reducing the need for large scale experimentation, and start-ups need smaller and more flexible spaces. So, how can a developer create a laboratory/office model that can rapidly respond to the changing requirements, and build-in long-term adaptability in an ever-evolving field.

Context is fundamental when making these decisions. Tenants are becoming more demanding of their spaces; they are asking for shorter and more flexible leases and the way we work has changed dramatically in the last 10 to 15 years. Rigid ‘desk bound’ working practices are being replaced by flexible hours and remote working. This transformation sits alongside increasing recognition of the value of ‘wellbeing’ and its importance for productivity and crucially in the attraction and retaininment of talented staff. These changing demands are driving a wider range of offers to the commercial office and laboratory market with an increasing requirement to provide both adaptability and differentiation.

Advances in computing power and mobile technology have resulted in a significant rise in small companies and start-ups seeking more affordable laboratory spaces. In addition, these occupiers are placing an increasing emphasis on collaboration, exchange of ideas and data in lieu of more isolated tasks, cellular spaces and hierarchical ways of working.

Standard 25-year leases are ending and this is providing new opportunities. In the 1990s, a higher level of mechanical and electrical servicing was ‘the norm’, with associated floor-to-floor heights to accommodate interstitial servicing distribution. Conversely, high structural capacity requirement is reducing. Damping can solve most anti-vibration requirements, and creative forms of ‘side-sticial’ servicing can remove the requirements for additional height to make buildings work harder, achieve higher rental values and ultimately become more attractive to a variety of potential tenants.

Benefits & Considerations

Flexibility in laboratory/office buildings can have significant benefits on the final product, so it takes some consideration knowing how to create this model. The reality, of course, is that there is no ‘one size fits all’ approach, however below are some of the key issues we at Scott Brownrigg considered when undertaking a feasibility review. This is reinforced by our first ‘flexLAB’ project - a case study of our Bio-Hub for ‘TusPark’ at Cambridge Science Park.


What is the requirement?

This will vary upon location, but generally the expectations on base build laboratories and offices are shifting. Emphasis on wellbeing, the desire for natural light and greater flexibility means more is demanded of space, and the amenity built into buildings is more varied and demanding on the base build. More volume per user is desirable, so higher ceilings, or exposed services with the structural soffit being the perceived ceiling rather than a suspended ceiling has been the recent trend.

What is the floor-to-floor height?

Space for services, natural light and an emphasis on volume means that a low floor to ceiling/soffit height is likely to have a detrimental effect on the value or even the ability to let the space or convert between office and laboratory use. However, an office with a floor-to-floor height much greater than 4.1m will incur additional expense, which will impact on viability.

What is the loading capacity of the structure?

Standard office buildings (to the BCO Standard) work off a 2.5 + 1 Kn/m2 with additional loading around cores for server space. However, additional capacity should be accommodated to allow for higher loading in Laboratory use. Wrapping this around cores and stairs will reduce the potential additional cost. Additional higher loadings are best accommodated on the ground floor using a ground- bearing slab.

What is the structural grid?

Working to a standard office grid of 7.5m x 9m gives flexibility for the future whilst allowing a plan that is free of columns for office or laboratory fit-out.

CASE STUDY: Bio-Hub, Cambridge Science Park

Scott Brownrigg designed and delivered the new Bio-Hub in Cambridge for TusPark Uk.

THE GOAL: The goal was to create a truly adaptive building, which can be an office or a laboratory. One that can adapt easily to support both uses, and flex between them as the requirement for either change as technology develops.

Our team developed this concept and tested it against the client’s need.

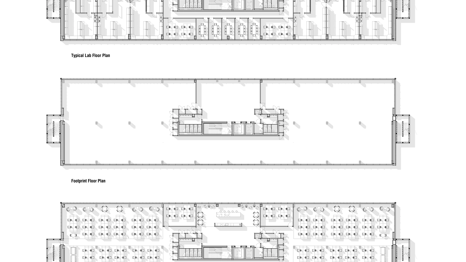
The Bio-Innovation centre 40,000 sq ft flexLAB building in Cambridge Science Park was conceived as a flexible multi-occupancy building for use by start-up companies who can rent one individual lab module of 7.5m x 9m and use the shared office space at ground floor for more admin jobs. The Bio-Innovation centre is designed to be efficient in the use of structure, construction and space.

STRUCTURE: A rectangular form has been proven to be the most flexible footprint to achieving a building that can be adapted for office or laboratory.

Columns spaced in a grid of 7.5m in the long side and 9m in the short side is efficient in a footprint for this type of building. The short side can be split with two grids of 9m or two rows of laboratories that run adjacent to a central corridor and inner core, which contains the staircase, lifts and toilets. If the length of the long side is a multiple of 7.5m, it allows for open space in an office building and minimum of 7.5m x 9m modules in a laboratory building.

Demountable walls between columns give the tenant the possibility of different size lab spaces, allowing tenants to increase their laboratory size from a module of 7.5m x 9m to 15m x 9m or 23.5m x 9m. If an under croft or basement is required, the column spacing 7.5m centred in the long direction and 9m in the short side allow for the width of three cars between 7.5m grid.

FAÇADE CONSTRUCTION: In the flexLAB building there is no need to go to a brick façade with windows at bench height to avoid cables and pipework being visible from outside. A floor-to-floor curtain walling system with a removable opaque film fixed to the inside of the glass acts as a visual screen, the same way as the masonry acts in a more conventional laboratory building.

When the building needs to convert to an office space the film can simply be removed and the floor-to-floor glazed façade will allow the light to penetrate into the whole height of the façade.

 

CONSTRUCTION HEIGHTS: A total of 4.1m floor-to-floor finish level works for the flexLAB building. A PT slab of around 350mm thick supports the load for laboratory use, and a 150mm raised-access floor is recommended for office building use, creating an overall 2.8m clear floor- to-ceiling height.

The 4.1m floor-to-floor finish level allows for an 800mm ceiling void for M&E equipment and for a 150mm floor build up, giving a BCO compliant 2.8m height from floor-to ceiling.

For laboratory use, a 75mm screed on void former gives a total of 150mm build up, which allows for future flexibility to convert the building between office and laboratory; this can be removed to create a raised access floor. If the labs will be completely stripped out for office use and a smaller ceiling void together with a greater floor-to-ceiling height are required, the bulkhead around the whole perimeter will allow for this.

Through its structure and construction, the Bio-Innovation centre provides a flexible space that can easily be converted into an office or laboratory, providing flexibility to the building’s end user.

CONCLUSION: The speed of technological change, the way we inhabit buildings and lifestyle choices are shifting the requirements for smaller and more flexible spaces.

Developers looking to the future of their Science Park developments need to recognise these changing requirements.

The flexLAB concept provides a solution to these changing needs, providing an approach which has adaptability at the core. It embraces change and allows for rapid modification.

Authors: Ed Hayden and Leire Zaldua

You're looking for an exceptional team.
We're looking for exceptional projects.

Let's start a conversation.

Enquire